Skip to main content
OPS GROUP — Proiectare, Topografie, Cadastru & Carte Funciară
Proiectare · Topografie · Cadastru · Focsani, Vrancea

NE OCUPĂM DE TOT DOSARUL PENTRU
AUTORIZAȚIA TA DE CONSTRUIRE.

Eliminăm incertitudinea din procesul de autorizare. Proiecte tehnice precise, ridicări topografice certificate și documentații cadastrale complete — toate pregătite corect din prima.

Dosar complet pentru Autorizația de Construire
Ridicări topografice & trasări pe șantier
Cadastru & intabulare în Cartea Funciară
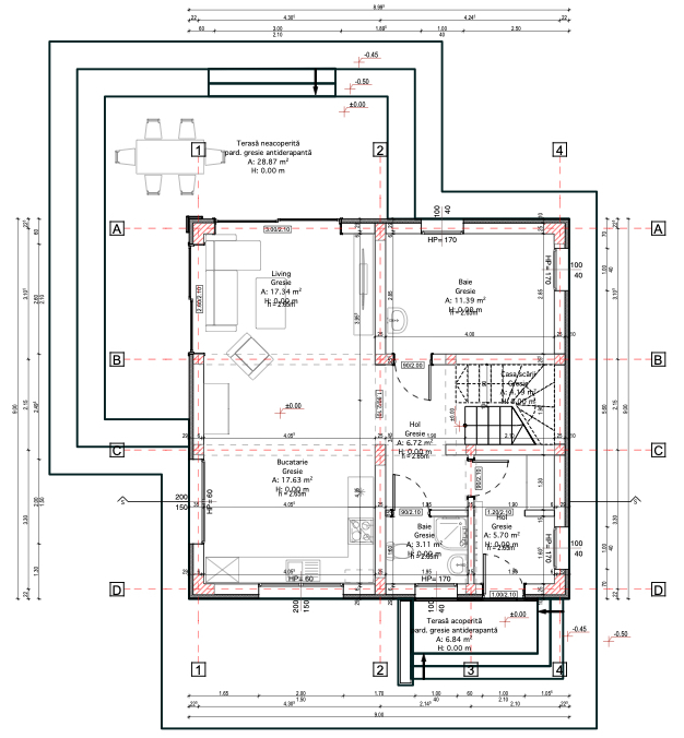
Proiect Dumbrăveni — plan
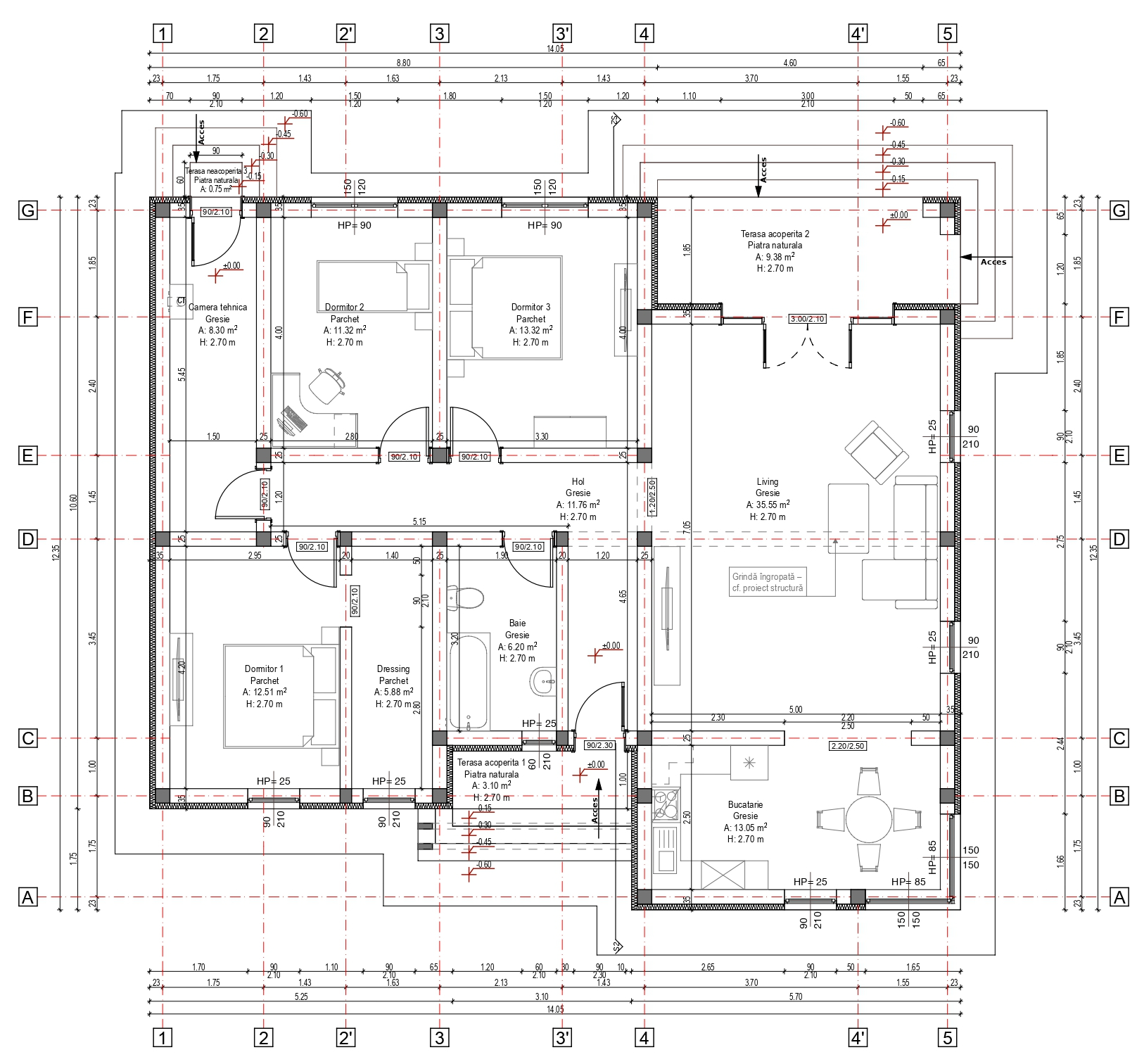
Proiect Focșani — DTAC
OPS GROUP
Proiect Dumbrăveni, Vrancea — finalizat
FINALIZAT

Când ai nevoie de noi

Vrei să construiești și ai nevoie de dosarul complet pentru autorizație
Ai șantier activ și necesiți verificări topografice sau trasări
Trebuie să actualizezi cadastrul sau să înscrii proprietatea în CF
Trimite-ne locația (pin Google Maps) și câteva detalii — îți spunem rapid ce documente sunt necesare.
Servicii
Domenii de
activitate

Servicii integrate de proiectare, topografie și cadastru pentru proiecte rezidențiale, comerciale și industriale.

01
Proiectare în construcții

Documentații complete pentru autorizare și execuție: arhitectură, rezistență, instalații. Civil, industrial, extinderi, amenajări exterioare.

Dosar complet pentru autorizație
Proiect tehnic de execuție
Expertize & consultanță
Recompartimentări și extinderi
Vezi detalii
02
Topografie inginerească

Ridicări topografice, trasări pe șantier, verificări cote și volume. Suport tehnic pe toată durata execuției lucrărilor.

Ridicări topo pentru proiectare
Trasări și replantări
Verificări cote și volume
Studii topografice și de teren
Vezi detalii și prețuri
03
Cadastru & Carte Funciară

Documentații complete pentru OCPI: intabulare, dezmembrări, alipiri, actualizări. Prima înscriere și regularizare proprietăți.

Intabulare & înscriere în CF
Dezmembrări & alipiri
Actualizări pentru construcții
Documentații OCPI
Vezi detalii și prețuri
Metodologie
Cum
lucrăm

Un proces transparent și eficient, structurat pentru a-ți oferi certitudine în fiecare etapă a documentației tehnice.

01
Contact inițial

Ne trimiți locația (pin Google Maps) și detalii despre proiect. În max. 24h primești lista exactă a documentelor necesare și un estimat de cost.

02
Măsurători pe teren

Efectuăm ridicările topografice și măsurătorile necesare. Folosim echipamente GPS și stație totală pentru precizie maximă.

03
Întocmire documentație

Pregătim documentația tehnică completă, verificată și conformă cu reglementările în vigoare. Fiecare proiect este revizuit de ingineri autorizați.

04
Livrare & suport

Primești documentația pregătită pentru depunere. Oferim suport tehnic până la obținerea autorizației și răspundem solicitărilor autorităților.

05
Unde lucrăm

Acoperim județul Vrancea și județele vecine, iar pentru lucrări mai mari ne deplasăm și la nivel național — în funcție de complexitatea și dimensiunea proiectului.

Instrumente
Calculatoare online
Estimare cost construcție

Estimare preliminară a costurilor de execuție pe categorii de lucrări. Util înainte de obținerea ofertelor de la constructori.

Accesează
Gata să începem?

Contactează-ne pentru o consultație gratuită

Îți spunem exact ce documente sunt necesare și în cât timp le poți obține. Fără costuri ascunse, fără surprize.